Excelente Oportunidade de Investimento - Terreno Urbano em Localização Privilegiada em Santarém Santarém, Marvila, Ribeira Santarém, S.Salvador, S.Nicolau
- Terreno
- 220 m2
Descrição
A apenas 5 minutos do centro de Santarém, em uma das zonas mais procuradas e próximas da prestigiada Escola Superior Agrária, encontra-se este terreno urbano, com 220 m² de área, oferecendo um excelente potencial incrível para quem procura um investimento a nível de construção.
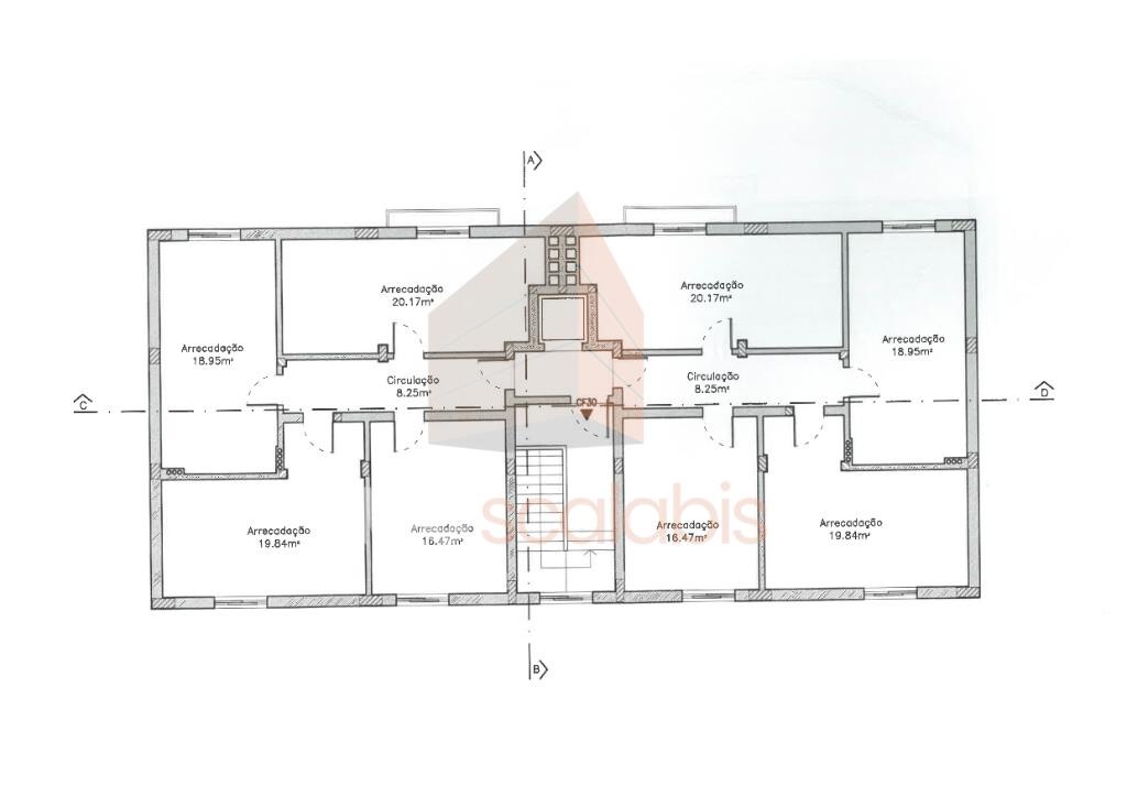
Este terreno contava com projeto aprovado pela Câmara Municipal de Santarém para a construção de um edifício de habitação coletiva, com 2 pisos subterrâneos para estacionamento (-1 e -2) e 4 pisos acima do solo. Cada andar do edifício seria composto por 2 frações T3, oferecendo 8 frações no total e ainda arrecadações a nível do sótão.
As frações T3 seriam projetadas para proporcionar máximo conforto e sofisticação, com dois WC, quartos amplos com roupeiro embutido, cozinha moderna e equipada, e uma sala de estar com varanda, garantindo a comodidade e a privacidade que os futuros moradores tanto procuram.
Este imóvel está estrategicamente localizado perto de escolas, com acesso fácil aos principais eixos rodoviários e ao centro da cidade, tornando-o a escolha ideal para quem valoriza a qualidade de vida e a proximidade com serviços essenciais.
Não perca esta oportunidade de investimento num local de excelência, com enorme potencial de valorização e rentabilidade. Entre em contacto hoje mesmo para saber mais sobre este projeto exclusivo e comece a dar os primeiros passos rumo ao seu próximo grande investimento imobiliário em Santarém.
Características
- Referência: IMO.012.107
- Preço: 95.000 €
- Área do terreno: 220 m2
- Certificado energético: N/A
Contacto
Patricia SousaSantarém, Santarém
- Home Scalabis - Investimentos E Mediacao Imobiliaria Lda
- AMI: 19498
- [email protected]
- Avenida Dom Afonso Henriques n.º5, 2000-179 SANTARÉM
- +351 910 712 304 (Chamada para rede móvel nacional) / +351 243 141 477 (Chamada para a rede fixa nacional)
Imóveis similares
- 7.595 m2
- 485 m2
- 2.808 m2
- 319 m2
- 478 m2
